イベント予約フォーム
下記フォームからもイベント予約を承ります。
後日、担当者からご連絡させていただきますので、
ご連絡をもってイベント予約確定とさせていただきます。

自然素材がもつ素朴な質感に、淡い光が静かに満ちる空間。
約34坪の住まいの中に、周囲の視線をやわらかくほどきながら、内へとひらく中庭とウッドデッキの半戸外空間をしつらえ、穏やかな時間が流れるよう計画しました。
| 日付 | ご希望の日時で受け付けております。 |
|---|---|
| 時間 | ①10:00〜、②13:00〜、③15:00〜、④17:00〜 |
| 開催場所 | つくばさくらの森モデルハウス(〒305-0019 茨城県つくば市さくらの森6-10) |
LINEまたはフォームよりお申し込みください
特別な日ではなく、普段の毎日が一番心地よくあること。
土間は外の喧騒を削ぎ落とし、素材の質感が静かに呼吸する「暮らしの余白」として、内と外を緩やかに繋ぎます。
光と影が描く境界に身を置き、移ろう季節を愛しみながら、日々を静かに整えていく場所です。
窓から注ぐ光と影のコントラストが、吹き抜けの土間に豊かな表情を描き出す。
土間の静謐さと無垢の床の温かみが、柔らかな光の中で美しく溶け合う場所。
時を重ねるほどに愛着が深まる、素材本来の質感を大切に。
中庭へと静かに抜ける視線が、空間に奥行きと、日々の心静かなゆとりをもたらします。
天窓から落ちる光の陰影と、無垢の床が奏でる温かみに包まれて、家族の時間がゆっくりと溶け合う場所です。
高窓から差し込む柔らかな光が、素材本来の美しさを静かに引き立てる。
ダイニングからリビング、中庭へと静かに抜け、空間に静かな奥行きをもたらす。
リビングやダイニングと緩やかにつながり、家族の気配を常に感じられる住まいの中心。
手馴染みの良い素材の質感が融合し、日々の家事さえも愛おしい時間へと変えていきます。
料理をしながら中庭の四季を愉しみ、移ろう光とともに、健やかな暮らしのリズムを静かに整えていく場所です。
木の質感が温かみを添え、柔らかな光の中で家族の気配を感じる場所。
照明の静かな光が、夜の営みを優しく包み込むキッチン。
街並みに対しては凛とした佇まい、内側には開かれた空を独占する、静かな場所。
中庭から届けられる光と風は、室内の素材に柔らかな階調を与え、住まい全体を健やかな空気で満たします。
季節ごとの景色の揺らぎを日常に取り込み、家族の歩幅に合わせた穏やかな時を紡いでいく住まいです。
夜に浮かび上がる凛とした外観が、健やかな暮らしの場を優しく守る。
暮れなずむ空の下、中庭の植栽が静かな陰影を描き出す。
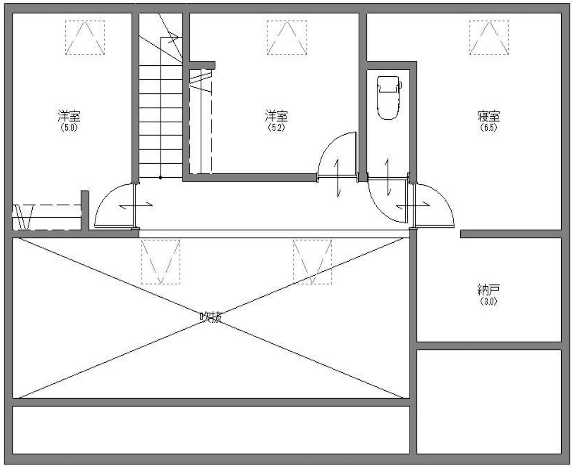
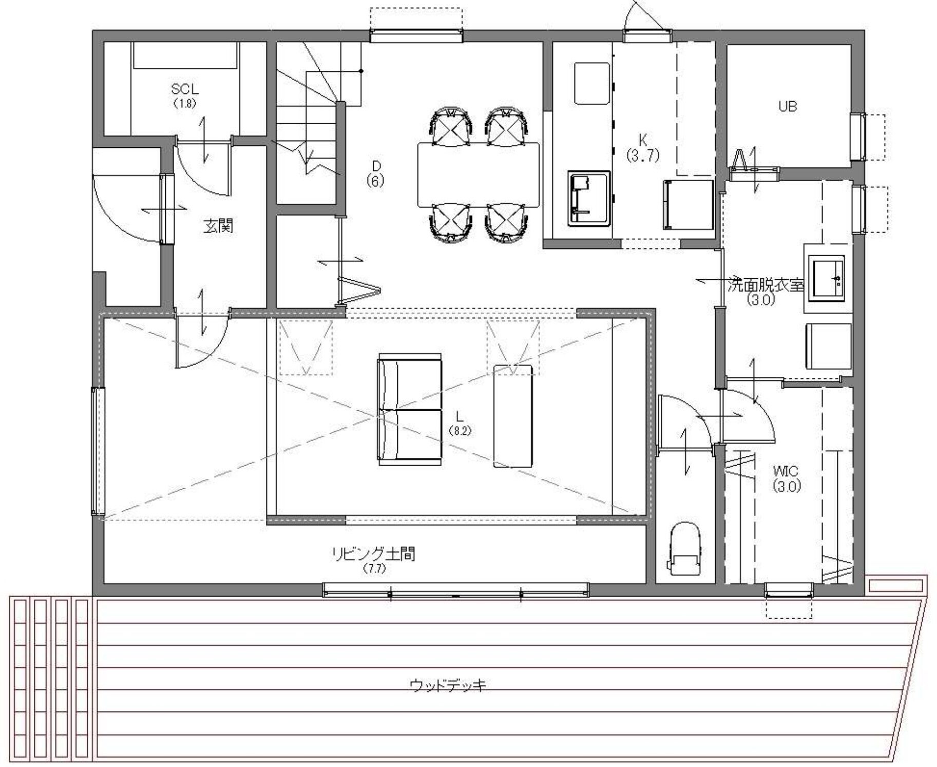
このモデルハウスの間取り図
1階平面図 床面積:70.87㎡(22.04坪)
2階平面図 床面積:41.40㎡(12.52坪)
つくばさくらの森モデルハウスへのご来場は完全ご予約制です。
▼予約方法はLINEまたは予約フォームからお願いいたします。
※WEBでのご予約は前日の18時まで下記フォームで受付させていただきます。お電話ですと当日予約も承っております。(ご希望に添えない場合もございます。)
LINEまたはフォームよりお申し込みください
LINEで簡単お申込み下記フォームからもイベント予約を承ります。
後日、担当者からご連絡させていただきますので、
ご連絡をもってイベント予約確定とさせていただきます。
開催日:5/2(土)・9(土)・10(日)・16(土)・17(日)・23(土)・24(日)・30(土)・31(日)
開催日:5/2(土)・9(土)・10(日)・16(土)・17(日)・23(土)・24(日)・30(土)・31(日)
エフリッジホームの家づくりに興味のある方は、
「家づくりの相談をしたいのですが…」と
お気軽にお問合せください。
モデルハウス見学や、資料請求も受け付けています。