イベント予約フォーム
下記フォームからもイベント予約を承ります。
後日、担当者からご連絡させていただきますので、
ご連絡をもってイベント予約確定とさせていただきます。

特別な日ではなく、普段の毎日が一番心地よくあること。
窓から届く光や、 季節の移ろいを静かに告げる庭の緑。
移り変わる四季を愛しみ、日々の暮らしを豊かに彩る。
この場所に身を置いて、流れる時間の穏やかさを体感してみてください。
| 日付 | ご希望の日時で受け付けております。 |
|---|---|
| 時間 | ①10:00〜、②13:00〜、③15:00〜、④17:00〜 |
| 開催場所 | 水戸見川モデルハウス(〒310-0912 茨城県水戸市見川3-596-5付近) |
LINEまたはフォームよりお申し込みください
外からの視線を遮り、空を切り取ったプライベートな庭。
カーテンを開け放したまま、移ろう四季を日々に取り込む。
住宅街にいることを忘れるような、穏やかな自由がここにあります。
庭の彩りを室内に取り込み、心静かに時を刻む。
視線の先にいつも季節がある、心静かな居場所。
光を柔らかく受け止める塗り壁と、足裏に馴染む無垢の床。
素材そのものの色や質感を活かした空間には、静かな美しさが宿ります。
時を重ねるごとに深まる風合いを、愛しみながら暮らす悦びを。
柔らかな光が描き出す、素材の陰影と静かな余白。
廊下を抜ける光が、無垢の風合いを静かに際立たせる。
リビングから中庭へと、視線が伸びやかに抜けていく開放感。
内と外の境界を曖昧にすることで、実際の面積以上のゆとりが生まれます。
家の中にいながら自然を身近に感じる、心地よい居場所です。
高窓が切り取る空の青と、庭の彩りが交差するダイニング。
刻一刻と表情を変える光が、静かな暮らしにリズムを刻む。
美しい設計は、家事という日常の動作さえも軽やかにする。
効率的な動線と適材適所の収納が、心にゆとりをもたらします。
四季を愉しむための「時間」を創り出す、暮らしの知恵を凝縮しました。
機能美を追求した、生活感さえも静かに整う場所。
質感豊かなタイルに光が陰影を落とす、凛とした洗面スペース。
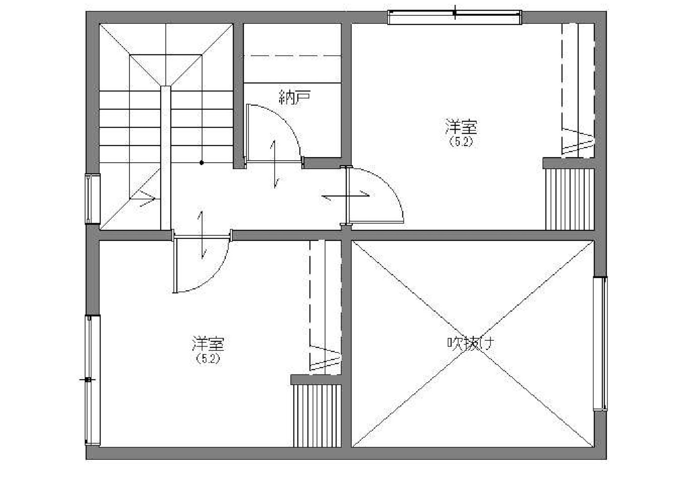
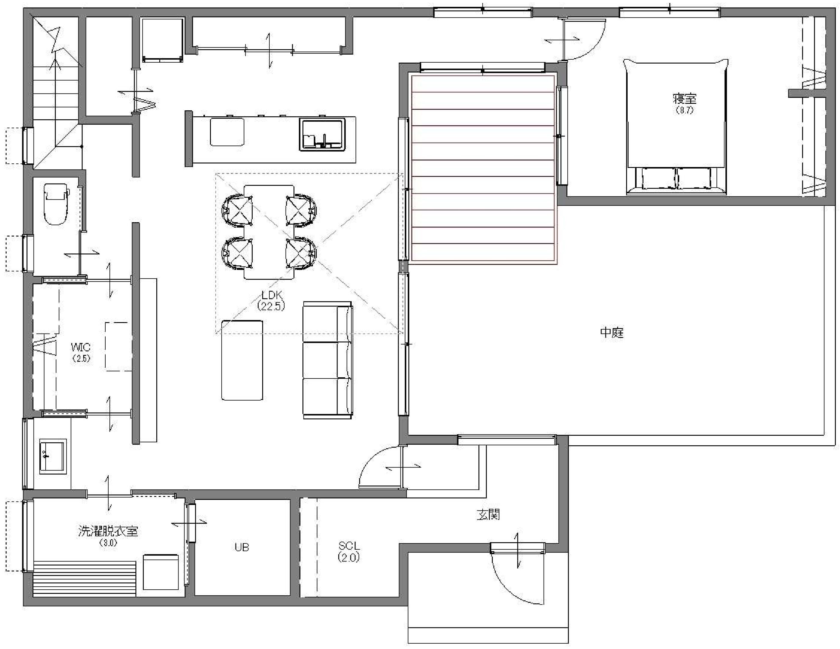
このモデルハウスの間取り図
1階床面積:85.70㎡(25.92坪)
2階床面積:26.08㎡(7.88坪)
水戸見川モデルハウスへのご来場は完全ご予約制です。
▼予約方法はLINEまたは予約フォームからお願いいたします。
※WEBでのご予約は前日の18時まで下記フォームで受付させていただきます。お電話ですと当日予約も承っております。(ご希望に添えない場合もございます。)
LINEまたはフォームよりお申し込みください
LINEで簡単お申込み下記フォームからもイベント予約を承ります。
後日、担当者からご連絡させていただきますので、
ご連絡をもってイベント予約確定とさせていただきます。
開催日:3/1(日)・7(土)・8(日)・14(土)・15(日)・20(金祝)・21(土)・22(日)・28(土)・29(日)
開催日:3/1(日)・7(土)・8(日)・14(土)・15(日)・20(金祝)・21(土)・22(日)・28(土)・29(日)
エフリッジホームの家づくりに興味のある方は、
「家づくりの相談をしたいのですが…」と
お気軽にお問合せください。
モデルハウス見学や、資料請求も受け付けています。