イベント予約フォーム
下記フォームからもイベント予約を承ります。
後日、担当者からご連絡させていただきますので、
ご連絡をもってイベント予約確定とさせていただきます。

段差を重ね、空気を緩やかに紡いだスキップフロアの住まい。
わずかな高低差が描く階調は、暮らしに奥行きと、心地よい距離をもたらします。
遮るのではなく、重なり合うことで生まれる家族の気配。
素材の息づかいとともに、この空間が奏でる静かな連なりを、ぜひお確かめください。
| 日付 | ご希望の日時で受け付けております。 |
|---|---|
| 時間 | ①10:00〜、②13:00〜、③15:00〜、④17:00〜 |
| 開催場所 | つくば流星台モデルハウス(〒305-0008 茨城県つくば市流星台50-3) |
LINEまたはフォームよりお申し込みください
外の喧騒を削ぎ落とし、玄関を開けた瞬間に広がるゆったりとした空間。
多用途な使い道を受け入れる素材の質感が静かに呼吸し、住む人に寄り添う暮らしの余白です。
自由な空気が家中を巡り、日常の何気ないひとときを豊かに彩る始まりの場所となります。
吹き抜けから差し込む健やかな光が、土間と無垢の床の境界を瑞々しく照らし出す。
静寂が深まる夜、照明の温かみが土間の質感を静かに浮かび上がらせる。
スキップフロアが生み出す、高さが生むリズム。
短い階段で結ばれた空間が、家族同士に程よい距離と気配をもたらす様子を表現します。
階上から見渡すリビングは、窓外の薄暮と室内の灯りが静かに溶け合う特別な場所。
窓から注ぐ力強い光が、スキップフロアの段差に豊かな陰影を描き出す。
段差があるからこそ生まれる、LDK全体を一望できる特別な視点。
天窓から注ぐ柔らかな光と、モルタル調の素材、無垢の木が奏でる温かみが美しく融合し、日々の家事さえも愛おしい時間へと変えていきます。
住まいの重心を静かに整えていく場所です。
天窓から落ちる光が吹き抜けを巡り、キッチン全体を瑞々しい空気で満たしていく。
切り取られた空を愉しむ天窓と、小ぶりな照明が日々の営みを優しく見守る。
時を重ねるほどに愛着が深まる、本物の素材たち。
天窓から落ちる光や、窓から滑り込む柔らかな光が、それぞれの素朴な表面に豊かな階調と陰影を映し出します。
余計な飾りを削ぎ落とし、素材そのものが持つ潔い佇まいが、住まい全体に凛とした安らぎをもたらす場所です。
深く差し込む光の陰影が、素朴な素材の持ち味を鮮やかに引き立てる。
滑り込む光が、時を経て風合いを増したモルタル土間の表情を静かに浮かび上がらせる。
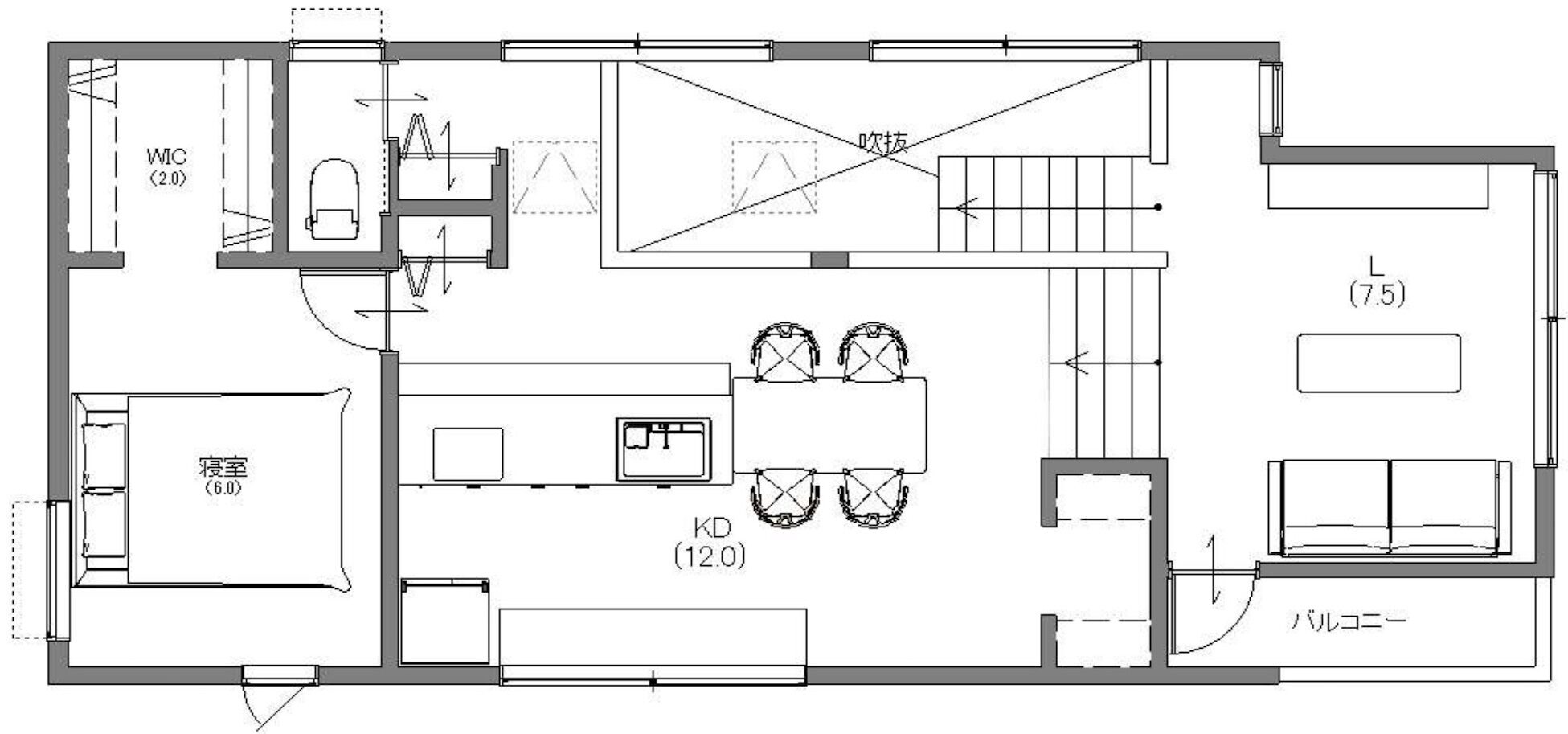
このモデルハウスの間取り図
1階平面図 床面積:61.27㎡(18.53坪)
2階平面図 床面積:55.47㎡(16.78坪)
つくば流星台モデルハウスへのご来場は完全ご予約制です。
▼予約方法はLINEまたは予約フォームからお願いいたします。
※WEBでのご予約は前日の18時まで下記フォームで受付させていただきます。お電話ですと当日予約も承っております。(ご希望に添えない場合もございます。)
LINEまたはフォームよりお申し込みください
LINEで簡単お申込み下記フォームからもイベント予約を承ります。
後日、担当者からご連絡させていただきますので、
ご連絡をもってイベント予約確定とさせていただきます。
開催日:5/2(土)・9(土)・10(日)・16(土)・17(日)・23(土)・24(日)・30(土)・31(日)
開催日:5/2(土)・9(土)・10(日)・16(土)・17(日)・23(土)・24(日)・30(土)・31(日)
エフリッジホームの家づくりに興味のある方は、
「家づくりの相談をしたいのですが…」と
お気軽にお問合せください。
モデルハウス見学や、資料請求も受け付けています。